—VELLA
Pfosten-Riegel-Fassade

Vella ist ein Holz-Aluminium-System für den Bau von Fassaden und Wintergärten.
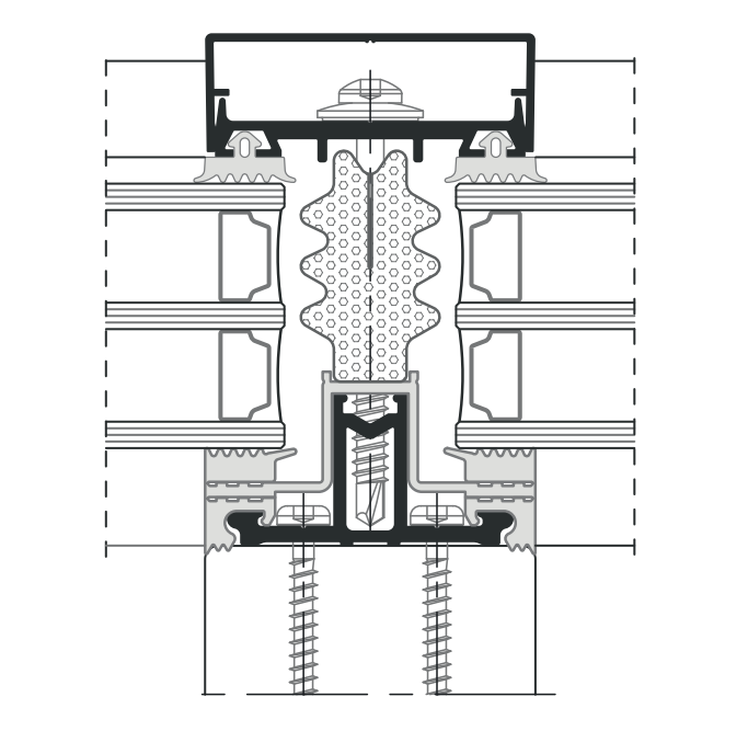
Die tragende Konstruktion besteht aus Holzpfosten mit einer Stärke von 50, 60 oder 80 mm und einer Tiefe, die auf der Grundlage statischer Berechnungen festgelegt wird. Das System umfasst eine breite Palette an Aluminiumprofilen, Dichtungen und Isolatoren. Es gewährleistet eine dauerhafte Befestigung des Glases, außergewöhnliche Dichtheit, hohe thermische Eigenschaften und garantiert einen hervorragenden Schutz für das Holz.
Die Pfosten und Riegel des Vella-Systems werden mit RICON-Verbindungselementen verbunden, die eine Lastübertragung durch das Glasgewicht von bis zu 550 kg ermöglichen. Alle Verbindungselemente werden für den Nutzer unsichtbar montiert. Darüber hinaus sind sie demontierbar, was eine Vormontage ermöglicht.
Systemmerkmale










AUSGEWÄHLTE SYSTEMPARAMETER
| Luftdurchlässigkeit – Wand ohne Fenster | Klasse AE 1500 Pa |
|---|---|
| Luftdurchlässigkeit – Wand mit Fenster | Klasse AE 1350 Pa |
| Wasserdichtigkeit – Wand ohne Fenster | Klasse RE 2400 Pa |
| Wasserdichtigkeit – Wand mit Fenster | Klasse RE 2400 Pa |
| Windlastbeständigkeit | 2400 Pa |
| Schlagfestigkeit – 1-Kammer-Isolierglas | Klasse I1/E2 |
| Schlagfestigkeit – 1-Kammer-Verbundglas, gehärtet | Klasse I5/E6 |
SYSTEMMERKMALE
| Wärmedämmwert U der Fassade | ab 0,614 W/m²K |
|---|---|
| Tragfähigkeit von Glas – herkömmliche Halterungen | bis zu 450 kg |
| Tragfähigkeit des Glases – Halterungen: verstärkt, kreuzförmig, einseitig/zweiseitig | bis zu 550 kg |
| Dicke der Verglasung für das Vella-System | 9-60 mm |
| Dicke der Verglasung für das Vella S-System | 9-62 mm |
| Holzquerschnittsdicke für das Vella-System | 50, 60, 80 mm |
| Holzquerschnittsdicke für das Vella S-System | 50 mm |



