—Gemini SI Standard
Nowoczesny system drzwi podnoszono-przesuwnych

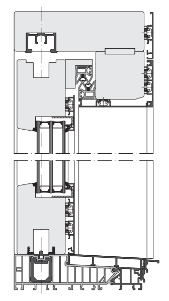
Konstrukcje systemu bazują na rozwiązaniach okuciowych firmy Siegenia. Jest to tradycyjna konstrukcja drzwi podnoszono-przesuwnych, zawierająca skrzydło czynne (jezdne) i skrzydło bierne. Wykorzystuje się w niej najnowszy system szklenia od zewnątrz, za pomocą listew aluminiowych. Jako alternatywa może być zastosowany konwencjonalny system szklenia od wewnątrz. Profile aluminiowe do Gemini SI Standard oferuje się go głównie w postaci gotowych ramek z połączeniem naroży spawanym lub mechanicznym. Rozwiązania konstrukcyjne, a w szczególności system uszczelnień i rozwiązań progowych, gwarantują ponadprzeciętną szczelność i znakomite walory użytkowe konstrukcji.
Cechy systemu










